Voyage autour de ma chambre

samedi 16 mai 2020

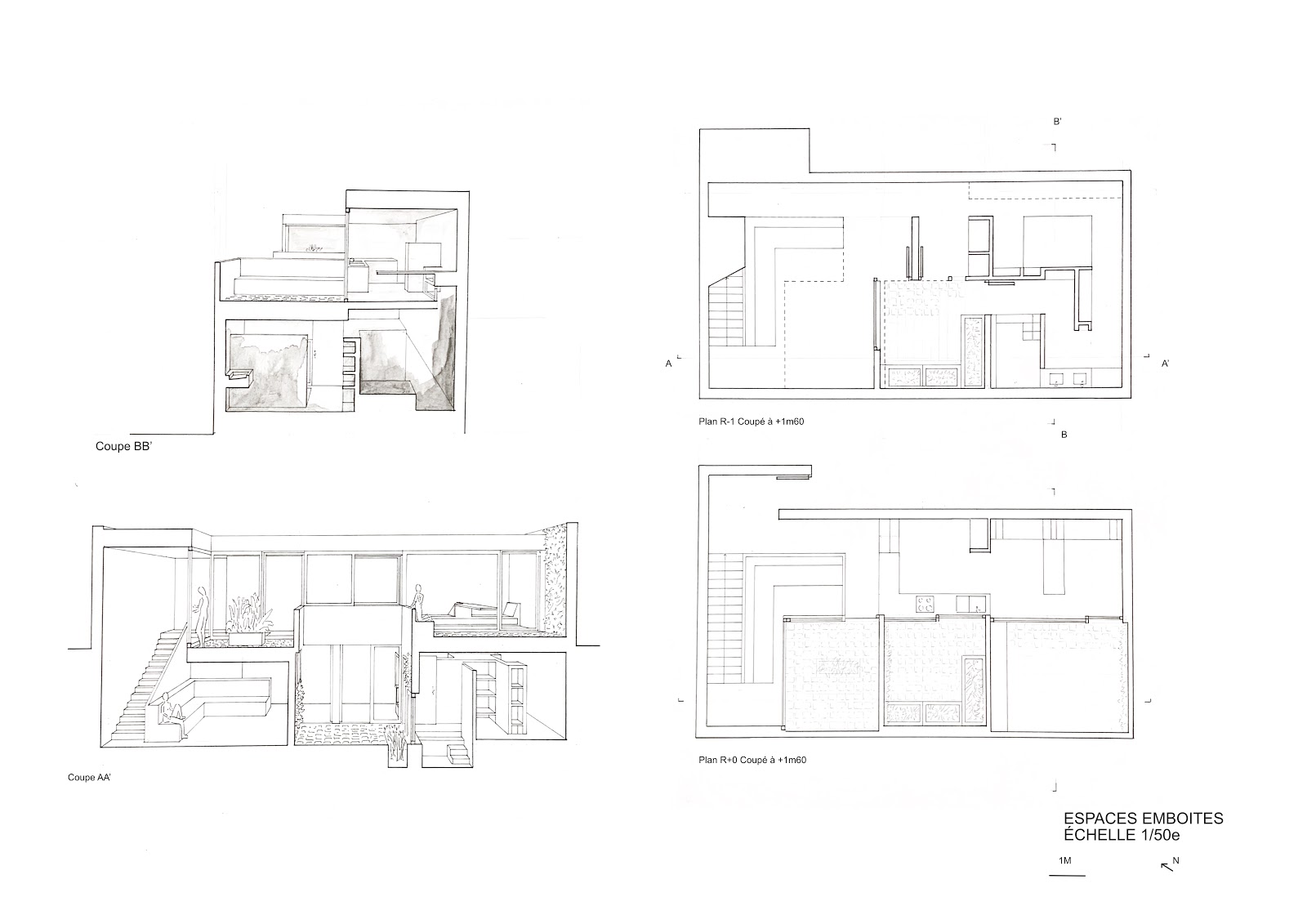
L'unité de vie verticale 1/4








































à mai 16, 2020
Envoyer par e-mailBlogThis!Partager sur XPartager sur FacebookPartager sur Pinterest

Aucun commentaire:

Enregistrer un commentaire

Article plus récent Article plus ancien Accueil
Inscription à : Publier les commentaires (Atom)

Au sortir de chez soi...

  • Au sortir de chez soi...
  • L'unité de vie verticale-2 -3/4
  • La mesure du pied

Rechercher dans ce blog

  • Accueil

Archives du blog

  • ▼  2020 (39)
    • ►  juin (2)
      • ►  05/06 (2)
    • ▼  mai (20)
      • ►  24/05 (1)
      • ►  20/05 (4)
      • ▼  16/05 (7)
        • composition plane
        • L'unité de vie verticale 4/4
        • L'unité de vie verticale 3/4
        • L'unité de vie verticale 2/4
        • L'unité de vie verticale 1/4
        • La Chambre 4/4
        • La Chambre 3/4
      • ►  06/05 (2)
      • ►  02/05 (2)
      • ►  01/05 (4)
    • ►  avr. (9)
      • ►  27/04 (1)
      • ►  21/04 (4)
      • ►  03/04 (4)
    • ►  mars (8)
      • ►  27/03 (2)
      • ►  26/03 (2)
      • ►  25/03 (2)
      • ►  24/03 (2)
Thème Simple. Fourni par Blogger.